Side view of washroom with detail AutoCAD drawing, CAD file, dwg file
Description
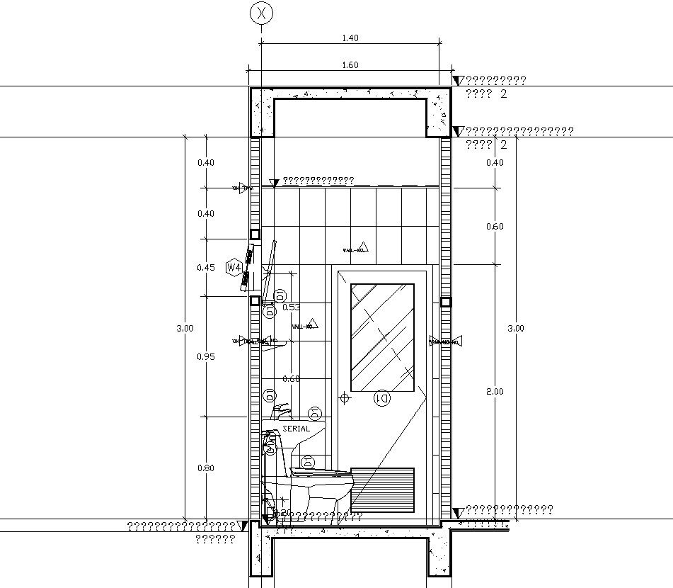
This architectural drawing is Side view of washroom with detail AutoCAD drawing, CAD file, dwg file. In this drawing there were size of the section is 1.40x3m is given. There were door section, toilet block, washbasin etc. are given with details. For more details and information download the drawing file.
File Type:
DWG
File Size:
29 MB
Category::
Interior Design
Sub Category::
Architectural Bathrooms And Interiors
type:
Gold
Uploaded by:
viddhi
chajjed

