Detail drawing of washroom in AutoCAD, dwg file, CAD file
Description
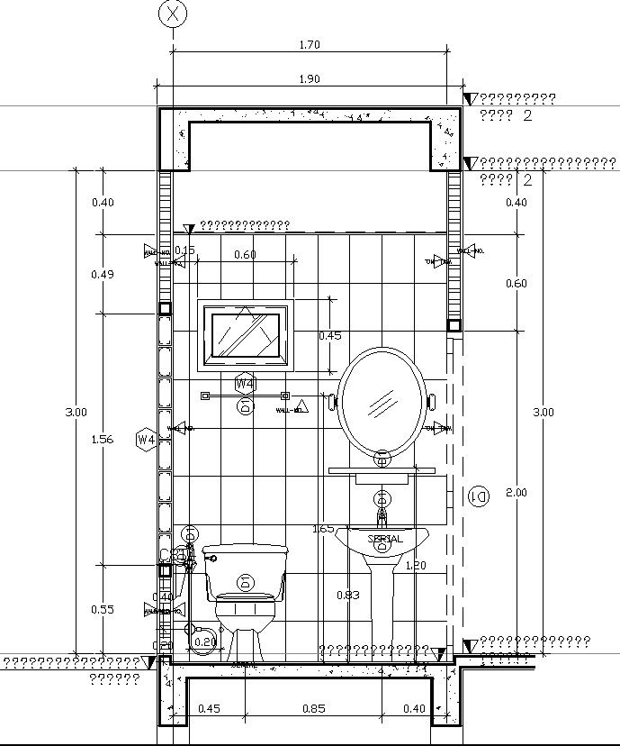
This architectural drawing is Detail drawing of washroom in AutoCAD, dwg file, CAD file. In this drawing there were size of the section is 1.70x3m is given. There were mirror, ventilator, washbasin, toilet block etc. are given with details. For more details and information download the drawing file.
File Type:
DWG
File Size:
29 MB
Category::
Interior Design
Sub Category::
Architectural Bathrooms And Interiors
type:
Gold
Uploaded by:
viddhi
chajjed
