Basement to Landing Stair Details in AutoCAD DWG File with Dimensions
Description
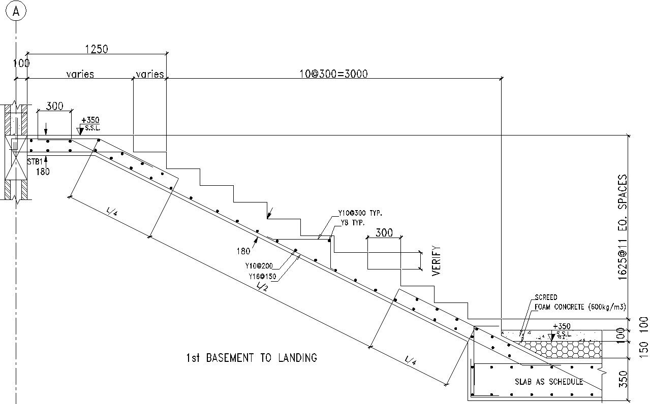
This Architecrutal Drawing is AutoCAD 2d drawing of Basement to landing stair details in AutoCAD, dwg files. Stairways and landings are required to be a minimum of 36” in width. Handrails are required on at least one side of stairways with four or more risers, and continuous for the full length of the flight. All landings are to be sloped a maximum of 1/4” per foot Minimum width of landing equal to width of door. Most codes call for a minimum clear width from finished wall to finished wall of 36". If they are only service stairs that will be fine. If the basement is going to be finished or you have to move furniture or appliances up and down, I would recommend 42" minimum. For more details and information download the drawing file.

Uploaded by:
Eiz
Luna

