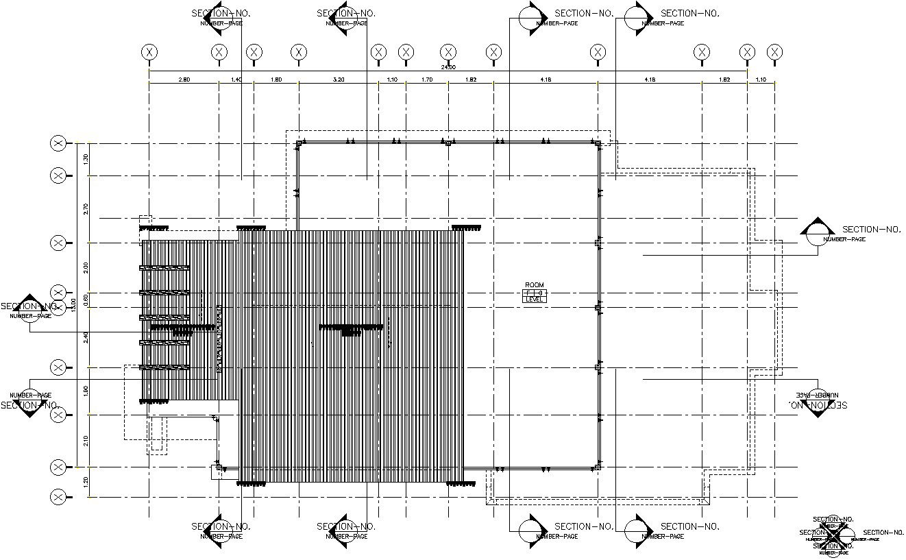
Frame plan of first floor of restaurant in detail AutoCAD drawing, dwg file, CAD file
Description
This architectural drawing is Frame plan of first floor of restaurant in detail AutoCAD drawing, dwg file, CAD file. In this drawing there were section drawing, floor plan, staircase section etc. are given with details. For more details and information download the drawing file.
Uploaded by:
viddhi
chajjed
