2D floor plan of first floor of restaurant with detail AutoCAD drawing, dwg file, CAD file
Description
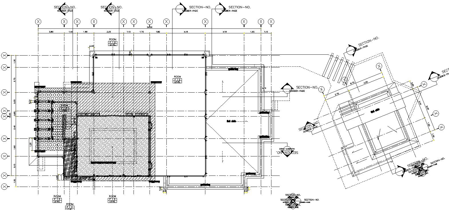
This architectural drawing is 2D floor plan of first floor of restaurant with detail AutoCAD drawing, dwg file, CAD file. In this drawing there were floor plan are given with dimensions and details. There were banquet hall, staircase, large dining area etc. are given with details. For more details and information download the drawing file.
Uploaded by:
viddhi
chajjed

