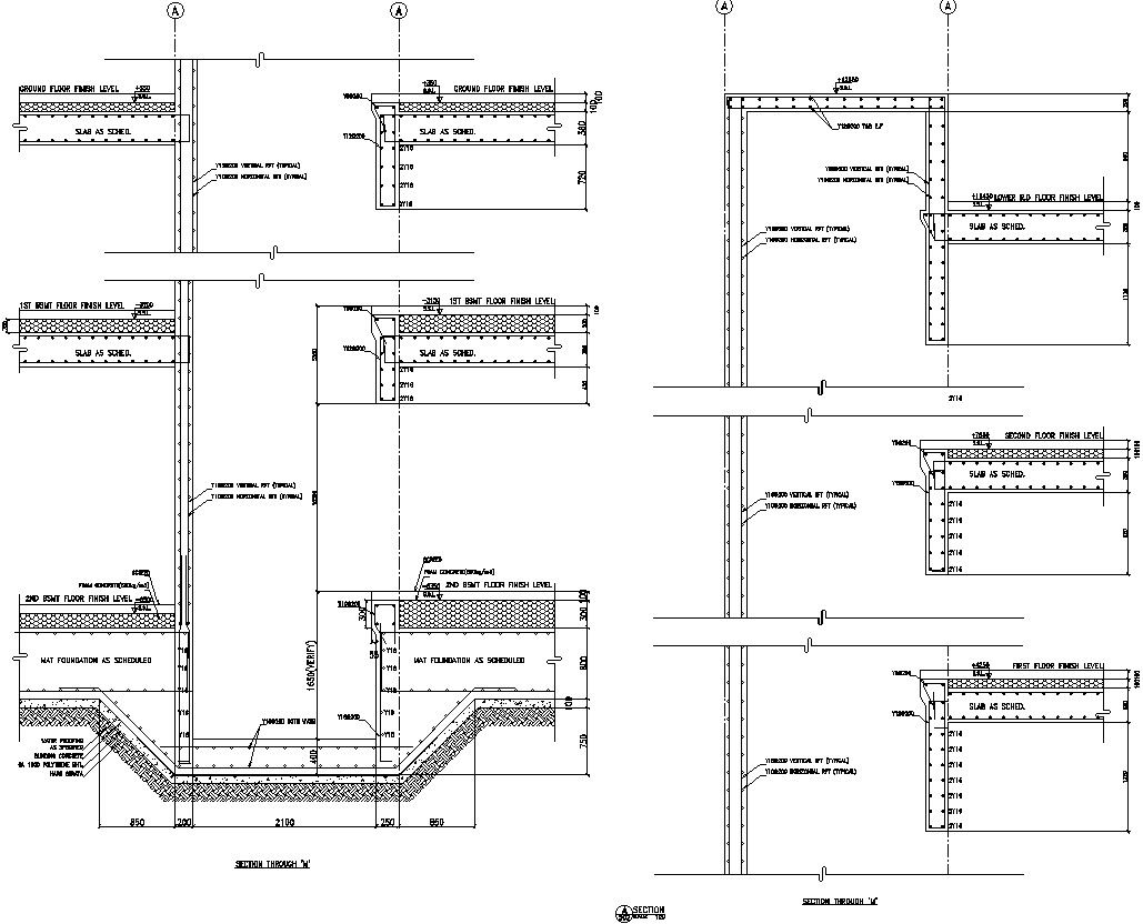
Elevator shaft top and bottom sections in AutoCAD, dwg files.
Description
This Architectural Drawing is AutoCAD 2d drawing of Elevator shaft top and bottom sections in AutoCAD, dwg files. The elevator pit is the part of the shaft that extends from the level of the lowest landing to the floor of the hoistway. The cab is lifted in the shaft by cables, which connect to the top beam of the elevator. The elevator pit is the part of the shaft that extends from the level of the lowest landing to the floor of the hoistway. The cab is lifted in the shaft by cables, which connect to the top beam of the elevator. For more details and information download the drawing file.

Uploaded by:
Eiz
Luna

