Side elevation of two storey house in detail AutoCAD drawing, dwg file, CAD file
Description
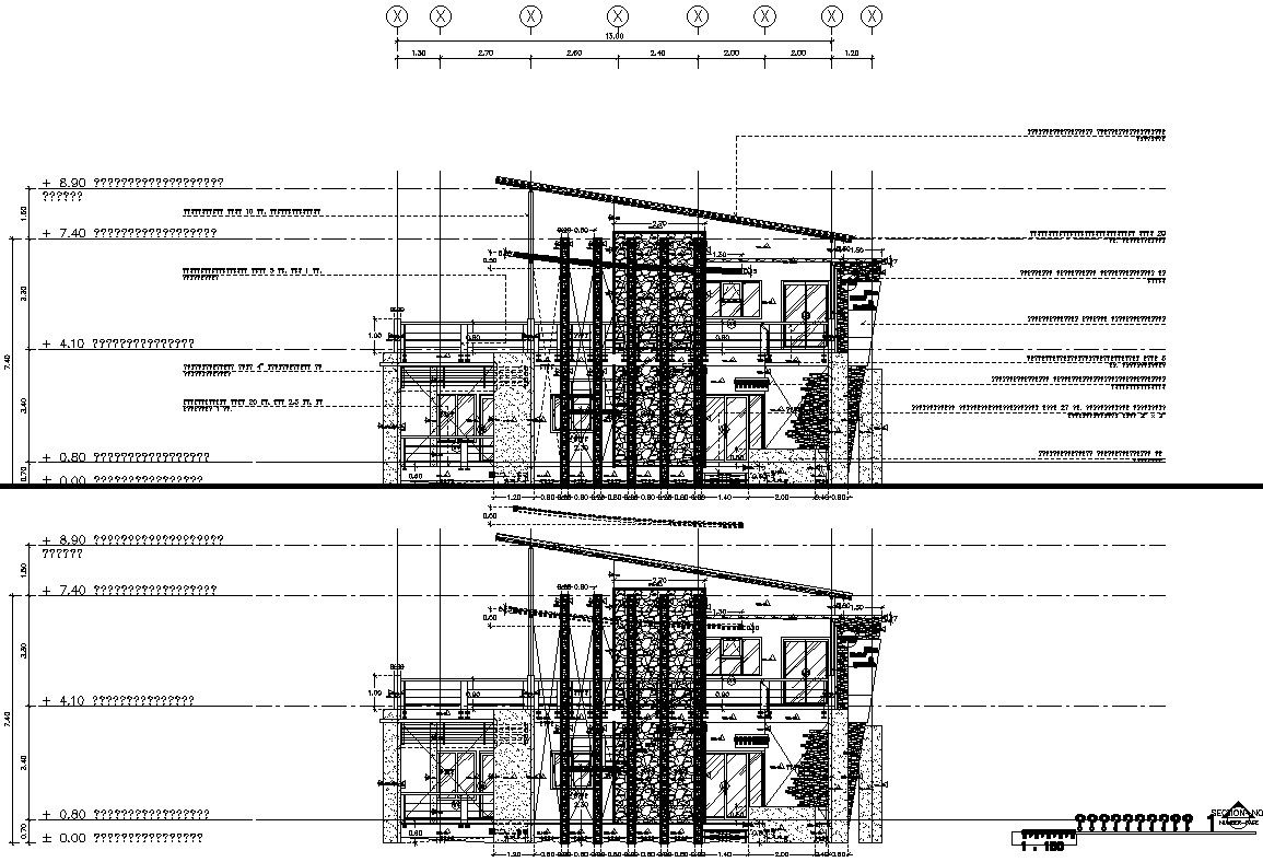
This architectural drawing is Side elevation of two storey house in detail AutoCAD drawing, dwg file, CAD file. In this drawing there were size of the section is 13x7.40m is given. There were wall section, door-window section, column section, roof section etc. are given with details. For more details and information download the drawing file.
Uploaded by:
viddhi
chajjed

