Construction site layout with detailing. in AutoCAD, dwg file.
Description
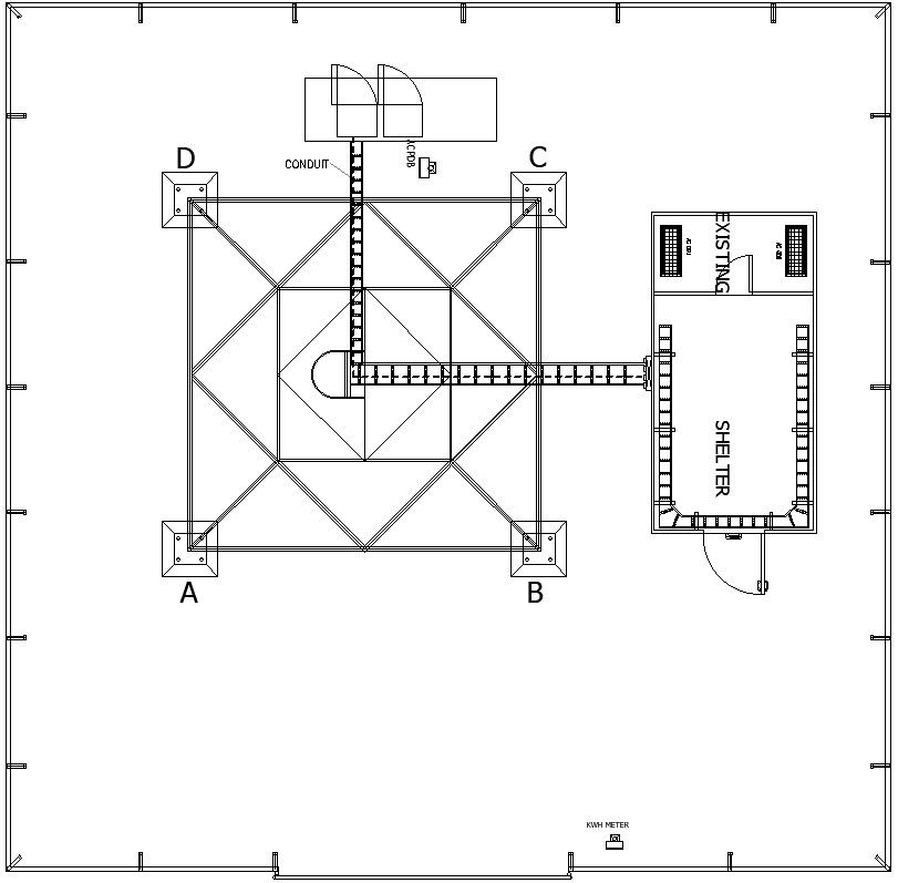
This Architectural Drawing is AutoCAD 2dd rawing of Construction site layout with detailing. in AutoCAD, dwg file. The layout of a construction site include locating, sizing, and positioning temporary facilities (TFs) inside the site's perimeter. Simple lay-down areas, warehouses, fabrication and repair shops, batch plants, and residential facilities are all included in this list of temporary facilities. For more details and information download the drawing file.
File Type:
DWG
File Size:
1.3 MB
Category::
Construction
Sub Category::
Construction Detail Drawings
type:
Gold

Uploaded by:
Eiz
Luna

