BRC fence and site layout details in AutoCAD, dwg file.
Description
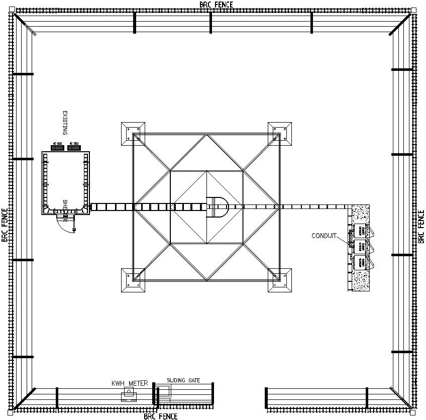
This Architectural Drawing is AutoCAD 2d drawing of BRC fence and site layout details in AutoCAD, dwg file. This type of wire fencing is also known as BRC. It has a standard length of 100 Feet and a standard height of 7 Feet, It is available in various mesh sizes and steel finishes. BRC Weldfence is the resulting product of high tensile steel strength wires that have been fused together using an advanced electrical fusion process. This process ensures that the fence is able to meet the exacting panel and mesh dimensions required of each project. For more details and information download the drawing file.
File Type:
DWG
File Size:
2.3 MB
Category::
Construction
Sub Category::
Construction Detail Drawings
type:
Gold

Uploaded by:
Eiz
Luna

