Genset details in construction site in AutoCAD, dwg files.
Description
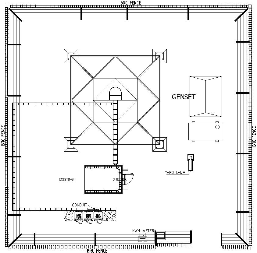
This Architectural Drawing is AutoCAD 2d drawing of Genset details in construction site in AutoCAD, dwg files. A well-designed emergency generator set room provides sufficient space for maintenance and operation of equipment without causing unnecessary backpressure on equipment. Courtesy: Teksan. The control panel should be positioned correctly for ease of use by maintenance/operating personnel. At its simplest, a generator set or “genset” is a piece of portable equipment, consisting of an engine and an alternator/electric generator, used to provide energy. For more details and information download the drawing file.
File Type:
DWG
File Size:
1.6 MB
Category::
Construction
Sub Category::
Construction Detail Drawings
type:
Gold

Uploaded by:
Eiz
Luna

