Power cable scheduling details in AutoCAD, dwg file.
Description
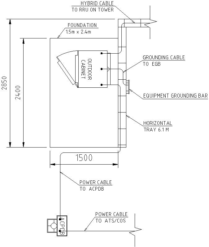
This Architectural Drawing is AutoCAD 2d drawing of Power cable scheduling details in AutoCAD, dwg file. A cable schedule is a table of information about cables for a particular installation. This can relate to cables for power, lighting, communication, security, fire, etc. Cable layout and routing has a critical effect at high frequencies and must be closely defined. A cable which is run close to the ground plane and in the opposite orientation to the measuring antenna, will radiate far less than one which is suspended in free space and aligned with the antenna. For more details and information download the drawing file.

Uploaded by:
Eiz
Luna

