Frame plan of club house in detail AutoCAD drawing, dwg file, CAD file
Description
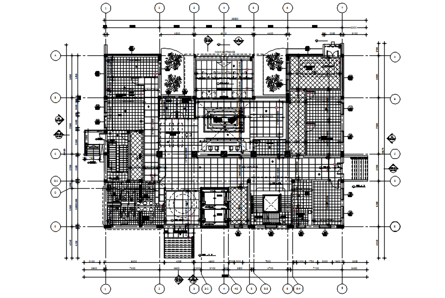
This architectural drawing is Frame plan of club house in detail AutoCAD drawing, dwg file, CAD file. In this drawing there were ground floor plan of club house is given with details. There were entrance area, reception area, waiting area, sports area, etc. are given with details. For more details and information download the drawing file.
Uploaded by:
viddhi
chajjed

