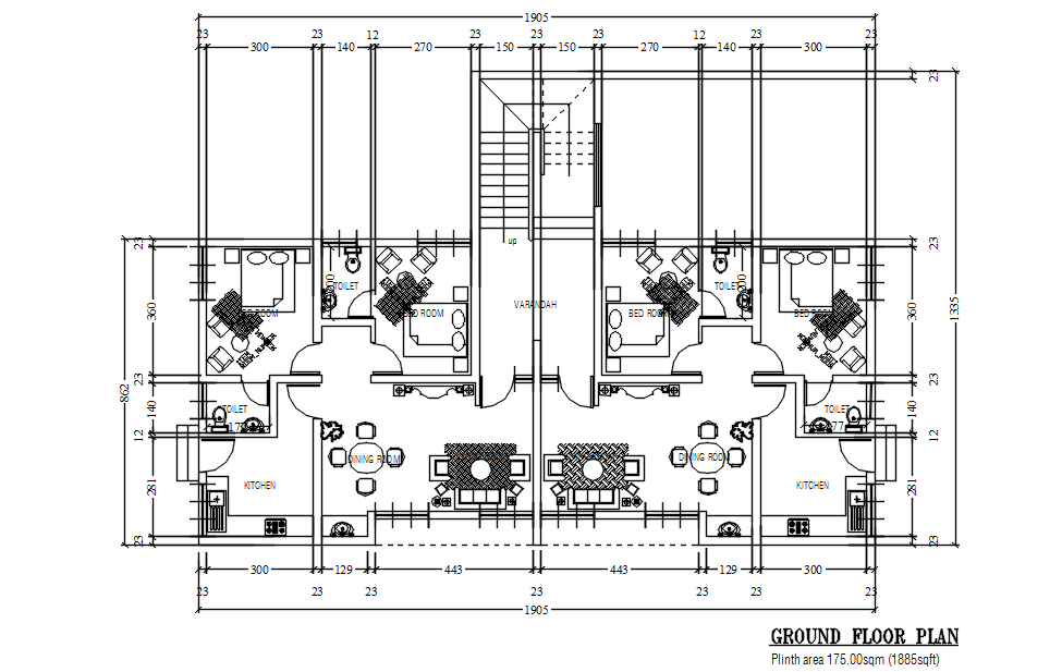
Ground floor plan of residential building with detail AutoCAD drawing, CAD file, dwg file
Description
This architectural drawing is Ground floor plan of residential building with detail AutoCAD drawing, CAD file, dwg file. In this drawing there were two flats are given. There were kitchen, living room, dining room, toilet-bathroom, two bedrooms etc. are given with details. For more details and information download the drawing file.
Uploaded by:
viddhi
chajjed

