Equipment layout of water protection system in AutoCAD, dwg file.
Description
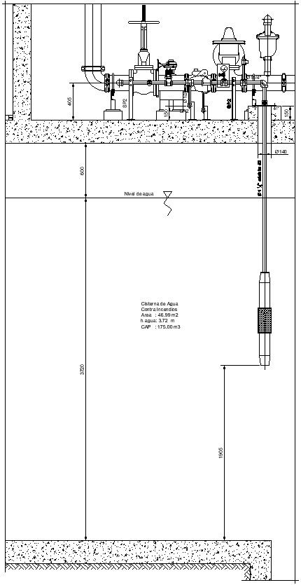
This Architectural Drawing ios AutoCAD 2d drawing of Equipment layout of water protection system in AutoCAD, dwg file. The layout of water distribution system tells us the network of pipes provided in the area and helps to determine the repair locations if any damages occurs.Equipment layout is just that - where pieces of equipment, such as displays and controls, are laid out in relation to everything else around them, including the person using them. For more details and information download the drawing file.
File Type:
DWG
File Size:
6.3 MB
Category::
Mechanical and Machinery
Sub Category::
Other Cad Blocks
type:
Gold

Uploaded by:
Eiz
Luna

