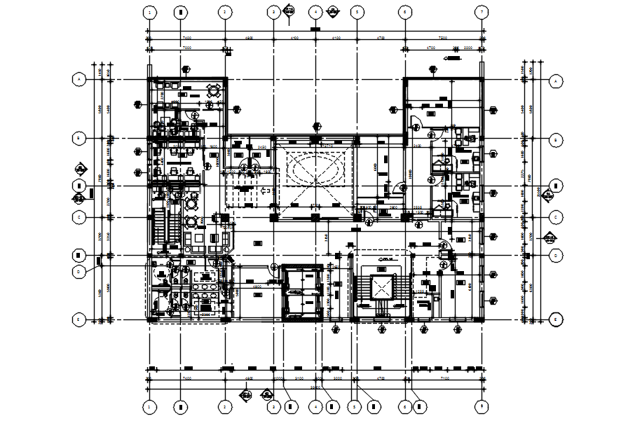
First floor plan of commercial building in detail AutoCAD drawing, dwg file, CAD file
Description
This architectural drawing is First floor plan of commercial building in detail AutoCAD drawing, dwg file, CAD file. In this drawing there were offices, lift sections, stair section, general washrooms, waiting room, etc. are given with details. For more details and information download the drawing file.
Uploaded by:
viddhi
chajjed

