Plate joint and pone joining details in AutoCAD, dwg file.
Description
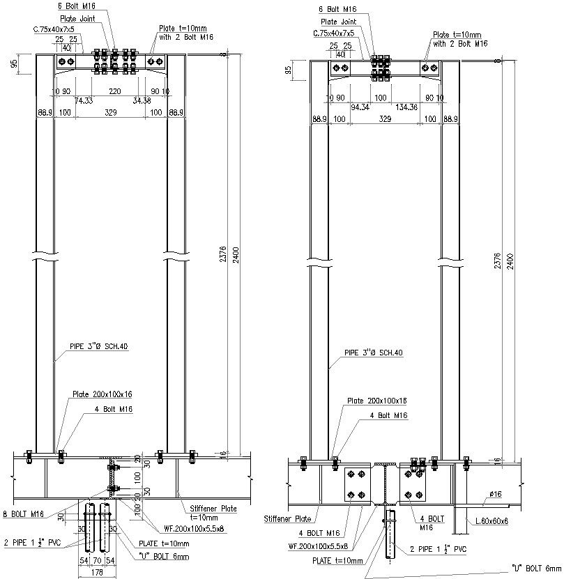
This Architectural Drawing is AutoCAD 2d drawing of Plate joint and pone joining details in AutoCAD, dwg file. Common joining methods include: Adhesive bonding, brazing, CSST, flanged, grooved, heat-fusion weld, hubless coupling, mechanical, PEX, press, quick connect, solder, solvent weld, SV gasket, threaded and welding. For more details and information download the drawing file.

Uploaded by:
Eiz
Luna

