Shelter design of electricity supply system in detail AutoCAD drawing, CAD file, dwg file
Description
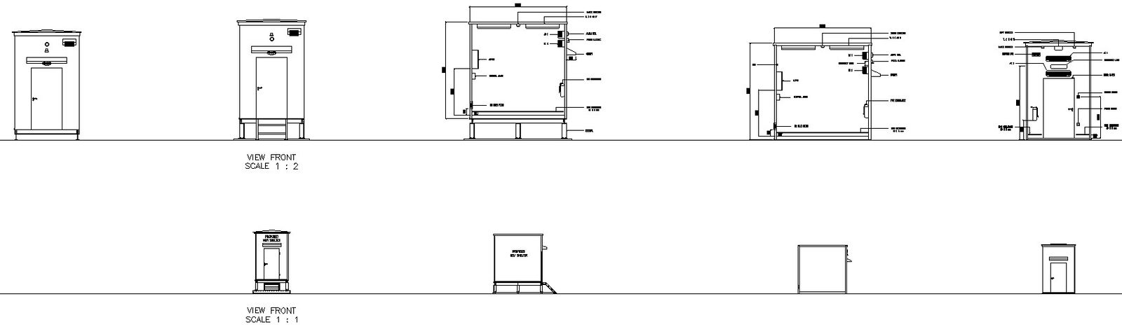
This architectural drawing is Shelter design of electricity supply system in detail AutoCAD drawing, CAD file, dwg file. In this drawing there were front view, external alarm, air inlet filter, fire extinguisher, canopy, alarm bell etc. are given with details. For more details and information download the drawing file.
File Type:
DWG
File Size:
4.7 MB
Category::
Electrical
Sub Category::
Electrical Automation Systems
type:
Gold
Uploaded by:
viddhi
chajjed
