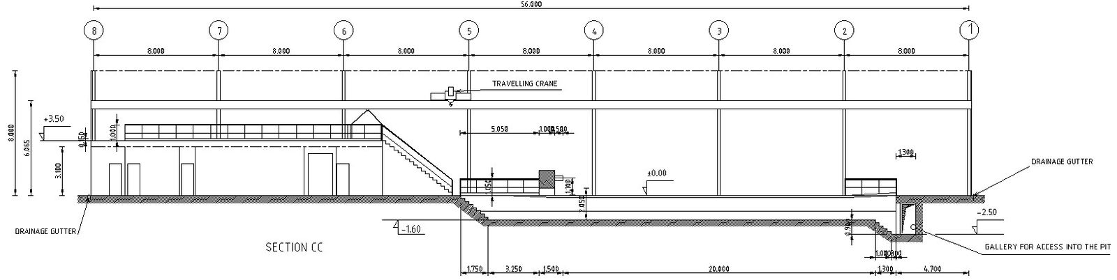
Workshop section drawing in AutoCAD, dwg file.
Description
This Architectural Drawing is AutoCAD 2d drawing of Workshop section drawing in AutoCAD, dwg file. A cross-section, which is a projection of an item onto an intersecting plane, is a typical tool used in technical drawing to represent the internal organisation of a three-dimensional object in two dimensions.

Uploaded by:
Eiz
Luna

