Floor plan of hostel in detail AutoCAD drawing, dwg file, CAD file
Description
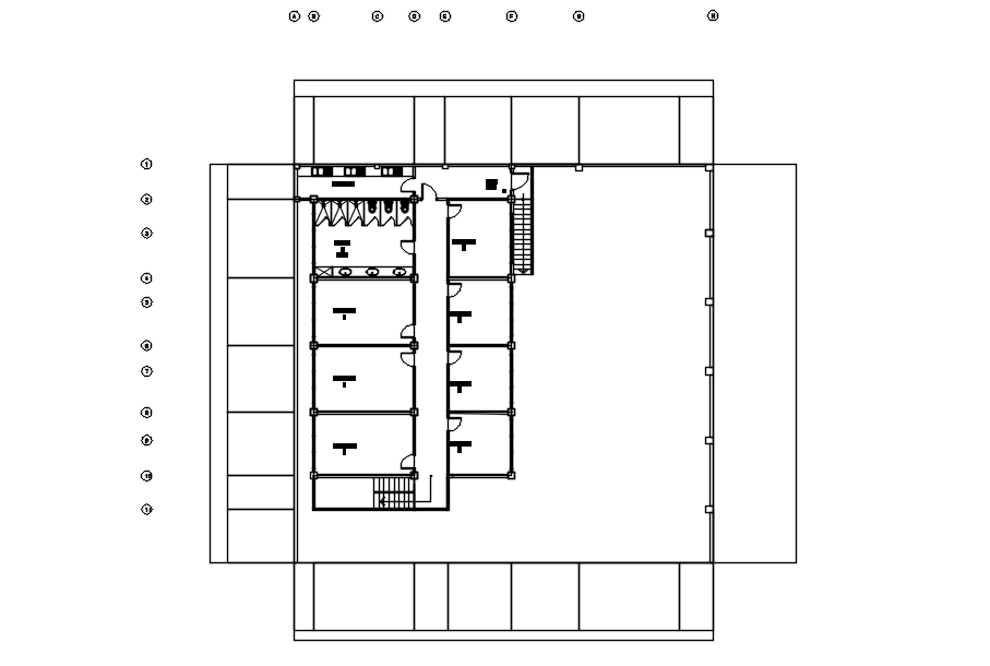
This architectural drawing is Floor plan of hostel in detail AutoCAD drawing, dwg file, CAD file. In this drawing there were stair landing section, bedrooms, general toilet-bathrooms, laundry area, entry and exit area, etc. are given with details. For more details and information download the drawing file.
Uploaded by:
viddhi
chajjed

