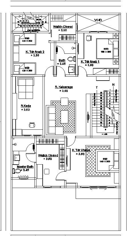
First floor house plan design details in AutoCAD, dwg file.
Description
This Architectural Drawing is AutoCAD 2d drawing of First floor house plan design details in AutoCAD, dwg file. A smart floor design also features acceptable room sizes and proportions, fewer corridors, enough storage space, and universal accessibility in addition to efficient movement. A good floor plan takes into account solar orientation and exterior views to maximise the natural setting.
File Type:
DWG
File Size:
2.9 MB
Category::
Interior Design
Sub Category::
House Interiors Projects
type:
Gold

Uploaded by:
Eiz
Luna

