First floor plan of G+2 storey house in detail AutoCAD drawing, dwg file, CAD file
Description
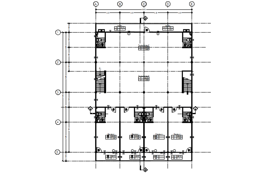
This architectural drawing is First floor plan of G+2 storey house in detail AutoCAD drawing, dwg file, CAD file. A floor plan is a representation of a home's interior in a drawing or other visual form from above. Key house components including doors, windows, stairs, and the major furnishings are included, along with a diagram of the wall layout. The names and dimensions of the rooms as well as the distances between the walls are also communicated. For more details and information download the drawing file.
Uploaded by:
viddhi
chajjed

