G+2 storey house cross section plan in detail AutoCAD drawing, CAD file, dwg file
Description
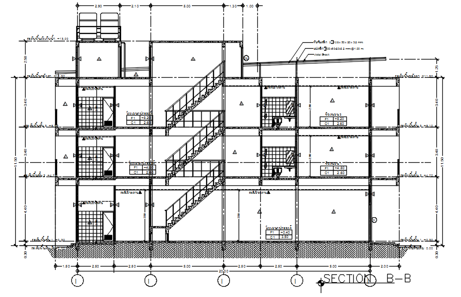
This architectural drawing is G+2 storey house cross section plan in detail AutoCAD drawing, CAD file, dwg file. A floor plan is a horizontal section seen from the top; a cross section, also known as a section, is a vertical plane cut across an object. A cross section and elevations of different structural elements that are visible beyond the section plane make form a sectional elevation. For more details and information download the drawing file.
Uploaded by:
viddhi
chajjed

