1st floor plan of commercial building in detail AutoCAD drawing, dwg file, CAD file
Description
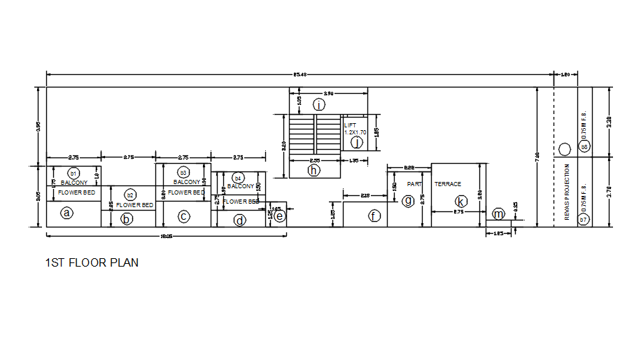
This architectural drawing is 1st floor plan of commercial building in detail AutoCAD drawing, dwg file, CAD file. Any building that is not a residence is referred to as a commercial building; examples include but are not limited to offices, nursing facilities, and retail malls. Any building that isn't a residence for one to four people is considered a commercial structure. For more details and information download the drawing file.
Uploaded by:
viddhi
chajjed

