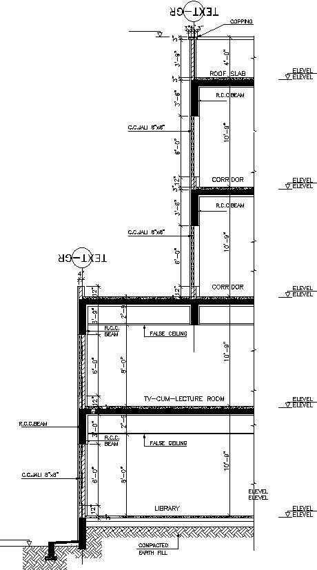
Cross section of a building with details in AutoCAD, dwg file.
Description
This Architectural Drawing is AutoCAD 2d drawing of Cross section of a building with details in AutoCAD, dwg file. Architectural drawings that are orthographic projections of structures with a cut transecting them are known as cross sections, or sections as they are more frequently known. A three-dimensional drawing is displayed in a two-dimensional view using this projection technique. For more details and information download the drawing file.

Uploaded by:
Eiz
Luna

