This AutoCAD 2d drawing shows the modular kitchen left side
Description
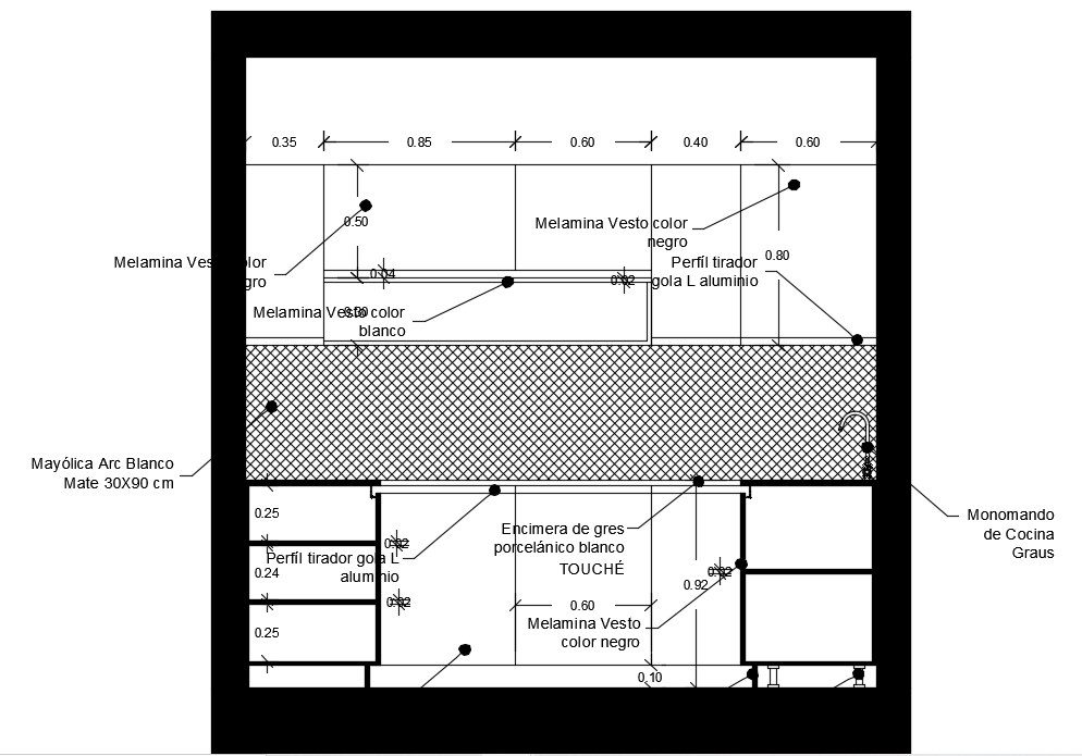
This AutoCAD 2d drawing shows the modular kitchen left side. Here, the wood details, construction details, and other details are mentioned. The total height of the building is 3m.
Uploaded by:

