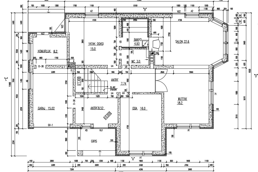
16x12m First Floor Beach House Plan DWG file for Architect
Description
16x12m first floor beach house plan drawing is given. The children’s room, two guest rooms, and shared bathroom are available on this first floor. The remaining part is provided with the roof.
Uploaded by:

