18x16m luxury villa ground floor plan is given in this file
Description
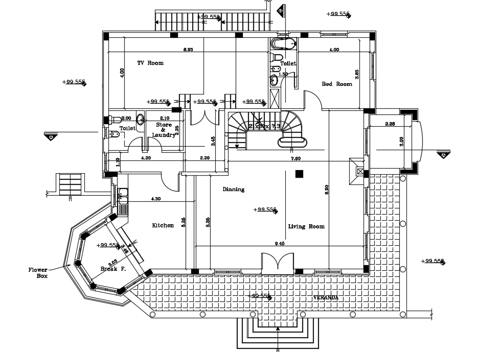
18x16m luxury villa ground floor plan is given in this file. This is three story residential building. The living room, kitchen, break fast area, dining hall, verandah, TV room, storeroom, laundry, master bedroom with an attached bathroom, and common bathroom are available on this ground floor.
Uploaded by:

