Crushing Machine AutoCAD DWG Drawing with Section and Plan Details
Description
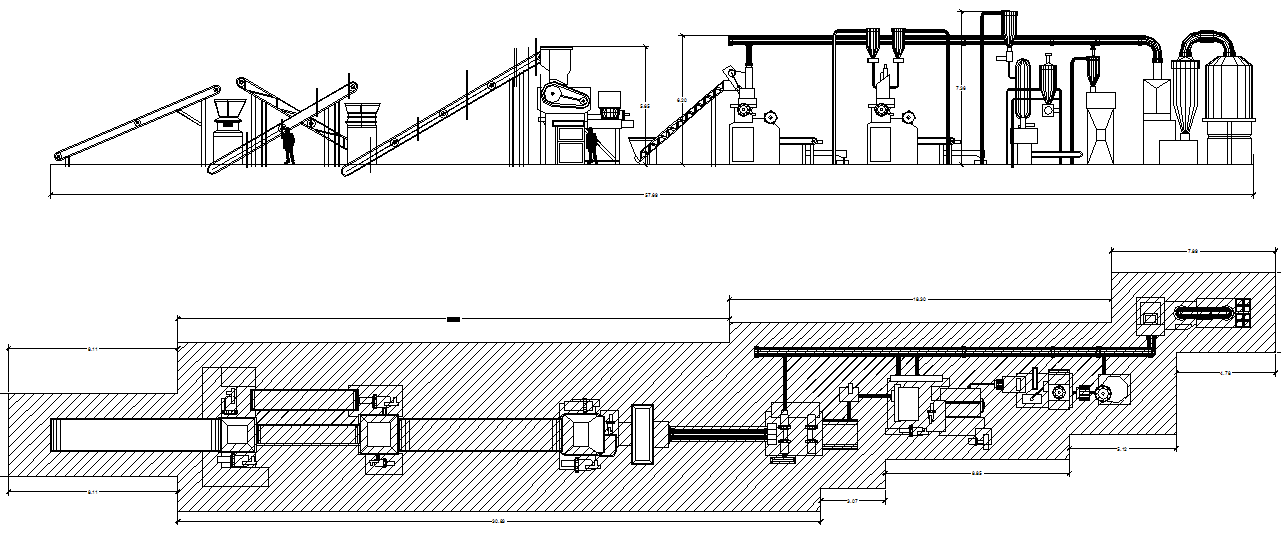
This Crushing Machine CAD drawing provides a complete AutoCAD DWG layout that includes detailed plans, sections, and mechanical components. The drawing showcases the full assembly layout of the crushing unit, conveyor system, and related processing machinery. Each component is illustrated with precision, showing shaft alignments, drive systems, motor placements, and gear mechanisms. The sectional views clearly indicate machinery foundation details, equipment alignment, and measurement annotations for accurate construction and installation.
This CAD drawing is ideal for mechanical engineers, industrial designers, and professionals working in the manufacturing and construction industries. It serves as a valuable reference for machine setup, design analysis, and plant layout planning. The file can be opened and edited in AutoCAD, Revit, or other compatible design software. Every dimension and section is carefully documented to provide a realistic understanding of machine structure and functionality. The drawing helps ensure precise implementation during fabrication and installation, making it an essential asset for mechanical and production design projects.
File Type:
DWG
File Size:
133 KB
Category::
Mechanical and Machinery
Sub Category::
Factory Machinery
type:
Free

Uploaded by:
Eiz
Luna

