Slab scaffolding design in detail AutoCAD drawing, dwg file, CAD file
Description
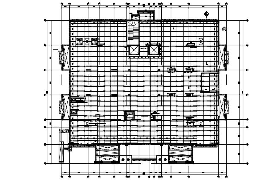
This architectural drawing is Slab scaffolding design in detail AutoCAD drawing, dwg file, CAD file. When fresh concrete is poured into a structural element, formwork acts as a temporary mould to support the concrete until it has dried and set. This aids in giving the structural member the necessary strength to support both its own load and loads placed on it by other components. For more details and information download the drawing file.
Uploaded by:
viddhi
chajjed

