AV system rack cabinet design in detail AutoCAD drawing, dwg file, CAD file
Description
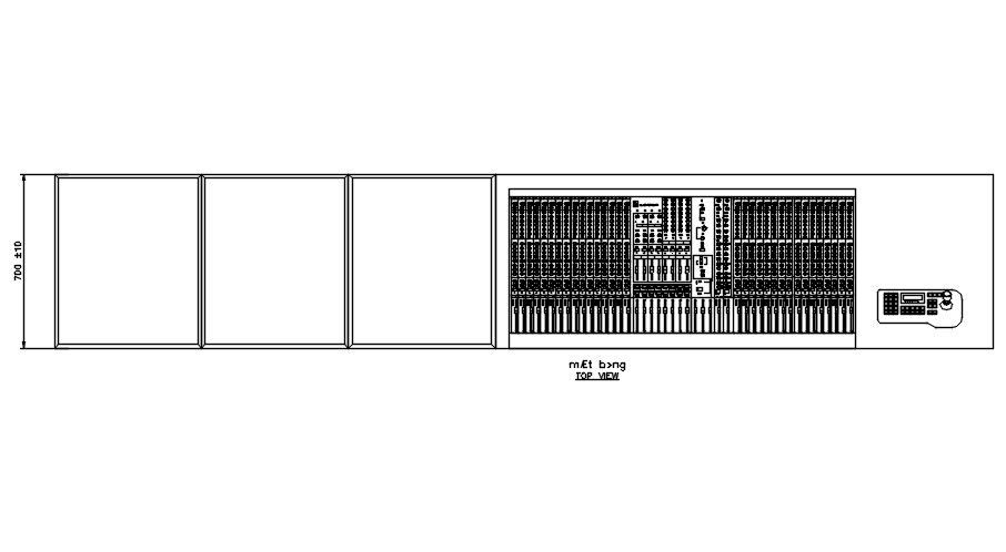
This architectural drawing is AV system rack cabinet design in detail AutoCAD drawing, dwg file, CAD file. In this drawing there were Auto blower, switch controller, equalizer, power amplifier, digital signal processor, power distributor, etc. are given with details. For more details and information download the drawing file.
File Type:
DWG
File Size:
2.7 MB
Category::
Electrical
Sub Category::
Electrical Automation Systems
type:
Gold
Uploaded by:
viddhi
chajjed

