Detail elevation of canopy and terrace in AutoCAD 2D drawing, dwg file, CAD file
Description
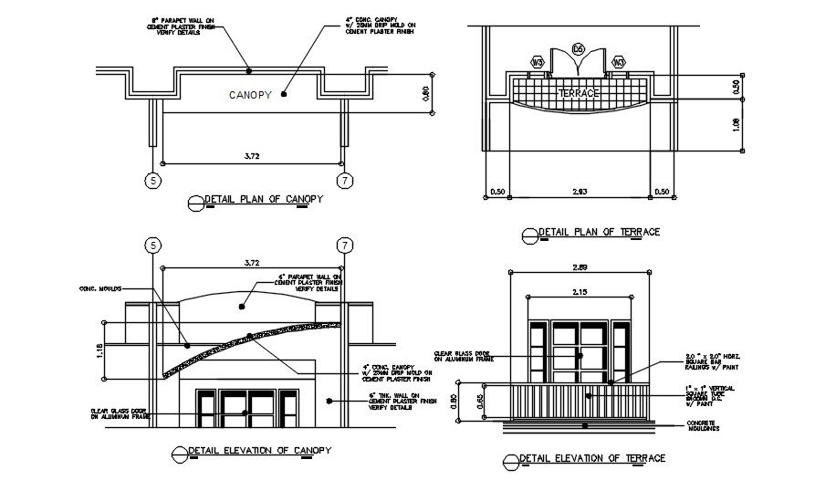
This architectural drawing is Detail elevation of canopy and terrace in AutoCAD 2D drawing, dwg file, CAD file. In this drawing there were plan and elevation of canopy and terrace are given with details. For more details and information download the drawing file Thank you for visiting our website cadbull.com.
Uploaded by:
viddhi
chajjed

