3rd floor plan of hotel building in AutoCAD 2D drawing, dwg file, CAD file
Description
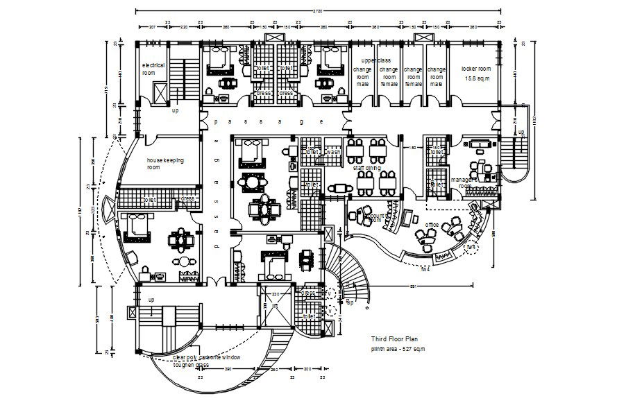
This architectural drawing is a 3rd-floor plan of a hotel building in AutoCAD 2D drawing, dwg file, CAD file. In this drawing, there were changing room, electrical room, house keeping room, toilet-bathrooms, dressing room, offices, staff dining area, etc. are given. For more details and information download the drawing file. Thank you for visiting our website cadbull.com.
Uploaded by:
viddhi
chajjed

