Floor plan of lighting system in AutoCAD 2D drawing, dwg file, CAD file
Description
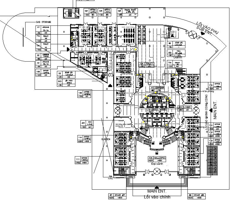
This architectural drawing is the Floor plan of the lighting system in AutoCAD 2D drawing, dwg file, and CAD file. It can avoid workplace accidents by making moving machinery and other safety hazards more visible, and it can lessen eye strain and headaches. Appropriate lighting should not cast any shadows or glare. For more details and information download the drawing file. Thank you for visiting our website cadbull.com.
Uploaded by:
viddhi
chajjed

