3rd floor plan of telemetering in AutoCAD 2D drawing, dwg file, CAD file
Description
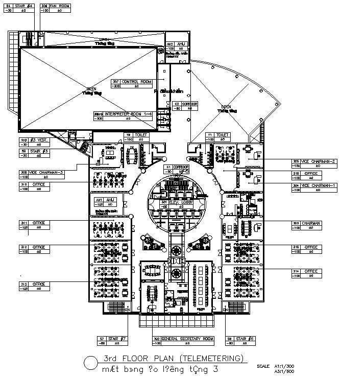
This architectural drawing is the 3rd-floor plan of telemetering in AutoCAD 2D drawing, dwg file, and CAD file. Telemetry is a highly automated communications method that is used to transfer measurements and other data from inaccessible or remote locations to receiving equipment for monitoring, displaying, and recording. For more information and details download the drawing file. Thank you for visiting our website cadbull.com.
File Type:
DWG
File Size:
1.5 MB
Category::
Electrical
Sub Category::
Electrical Automation Systems
type:
Gold
Uploaded by:
viddhi
chajjed

