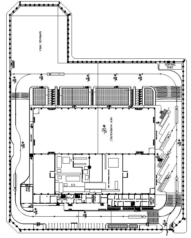
Ware house detail floor plan in AutoCAD, dwg file.
Description
This Architectural Drawing is AutoCAD 2d drawing of Ware house detail floor plan in AutoCAD, dwg file. A warehouse layout is the planned design of a warehouse to streamline overall operations. The right layout should help to improve the flow of production and distribution.

Uploaded by:
Eiz
Luna

