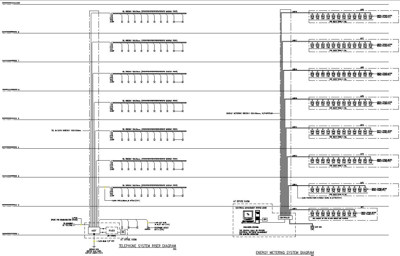
Energy metering system diagram details in AutoCAD, dwg file.
Description
This Architectural Drawing is AutoCAD 2d drawing of Energy metering system diagram details in AutoCAD, dwg file. The basic principle of induction energy meter is electromagnetic induction. A thin disc of aluminium (or copper) is pivoted between the two Shunt and Series magnets and cuts the fluxes of both the magnets. Hence two eddy currents are induced in the disc.
File Type:
DWG
File Size:
488 KB
Category::
Electrical
Sub Category::
Electrical Automation Systems
type:
Gold

Uploaded by:
Eiz
Luna

