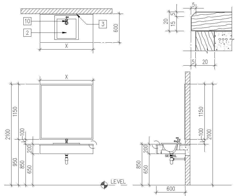
Bathroom basin plan elevation and section details in AutoCAD, dwg file.
Description
This Architectural Drawing is AtoCAD 2d drawing of Bathroom basin plan elevation and section details in AutoCAD, dwg file. Bathroom basins can be divided into 6 basic types; Wall Basins, Vanity Basins, Semi Recessed Basins, Above Counter Basins, Under Counter Basins and Freestanding basins.

Uploaded by:
Eiz
Luna

