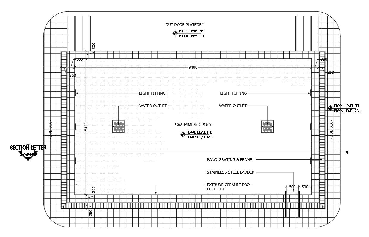
Section detail plan of Swimming pool in AutoCAD, dwg file.
Description
This Architectural Drawing is AutoCAD 2d drawing of Section detail plan of Swimming pool in AutoCAD, dwg file. The suction lines are the PVC pipes that carry water from the pool skimmer and main drain to the pool pump.

Uploaded by:
Eiz
Luna

