Sewage treatment process details in AutoCAD, dwg file.
Description
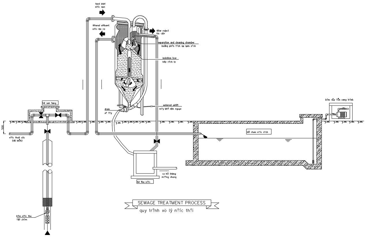
This Architectural Drawing is AutoCAD 2d drawing of Sewage treatment process details in AutoCAD, dwg file. Gravity separation of solids is the primary treatment of sewage, where the unit process is called "primary settling tanks" or "primary sedimentation tanks." It is also widely used for the treatment of other types of wastewater.
File Type:
DWG
File Size:
332 KB
Category::
Dwg Cad Blocks
Sub Category::
Autocad Plumbing Fixture Blocks
type:
Gold

Uploaded by:
Eiz
Luna

