2D AutoCAD Drawing of 2nd Floor Rectifier Room Layout and Details
Description
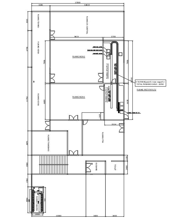
This AutoCAD DWG file provides a comprehensive 2D drawing of a 2nd-floor rectifier room, essential for electrical installations in commercial or industrial buildings. The layout includes precise placement of rectifiers, control panels, ventilation systems, and cable routing, ensuring efficient space utilization and compliance with electrical standards. Ideal for electrical engineers, contractors, and facility planners, this drawing aids in the planning and execution of rectifier room setups.
Uploaded by:
viddhi
chajjed
