Commercial building floor plan details in AutoCAD 2D drawing, dwg file, CAD file
Description
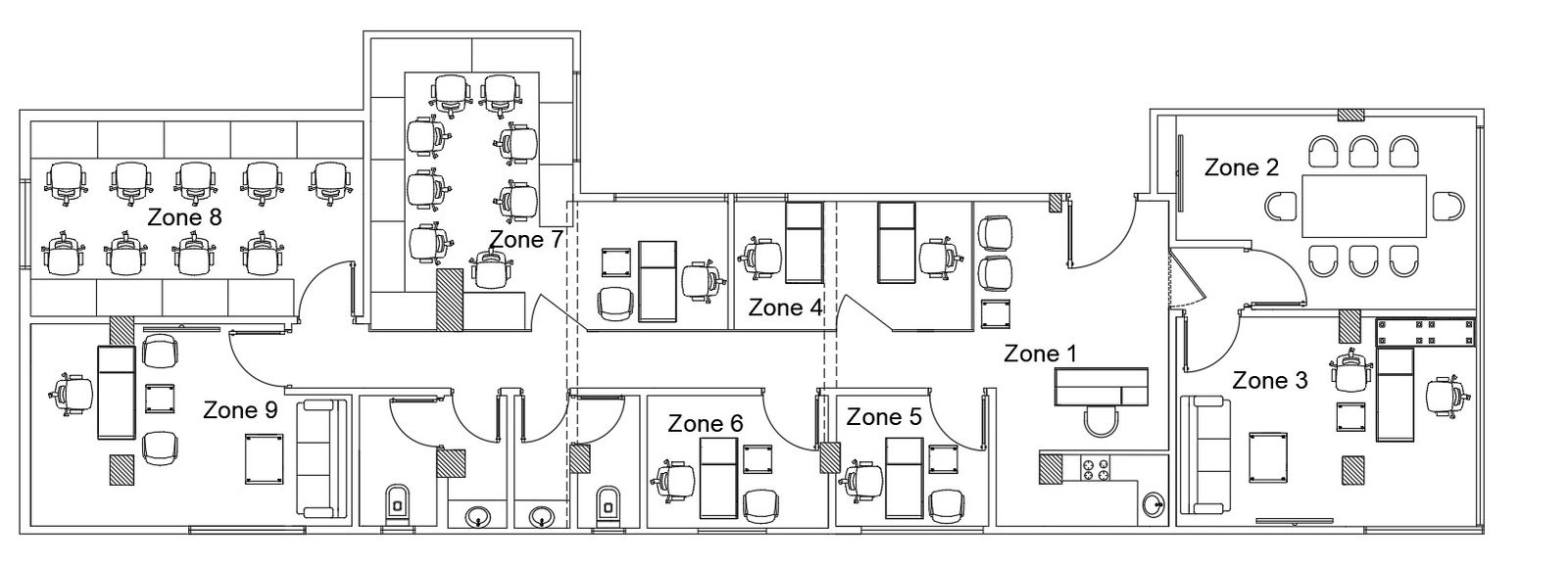
This architectural drawing is Commercial building floor plan details in AutoCAD 2D drawing, dwg file, and CAD file. In this drawing, there were offices, a meeting room, toilet-bathroom, a staff area, etc. are given. For more details and information download the drawing file. Thank you for visiting our website cadbull.com.
Uploaded by:
viddhi
chajjed

