Detailed plan of incinerator factory in AutoCAD 2D drawing, dwg file, CAD file
Description
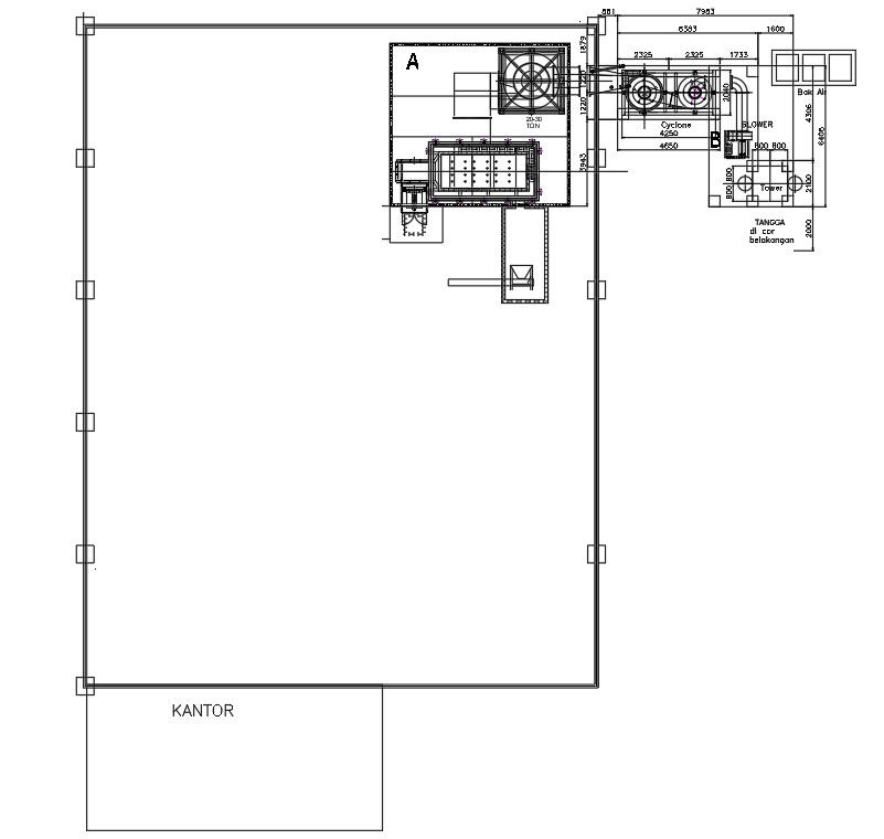
This architectural drawing is A detailed plan of the incinerator factory in AutoCAD 2D drawing, dwg file, and CAD file. Burning dangerous items at temperatures high enough to kill pollutants is known as incineration. In order to burn dangerous materials in a combustion chamber, a type of furnace called an "incinerator" is used for incinerating. For more details and information download the drawing file. Thank you for visiting our website cadbull.com.
File Type:
DWG
File Size:
2.4 MB
Category::
Mechanical and Machinery
Sub Category::
Factory Machinery
type:
Gold
Uploaded by:
viddhi
chajjed

