Main frame of first chamber in detail AutoCAD 2D drawing, CAD file, dwg file
Description
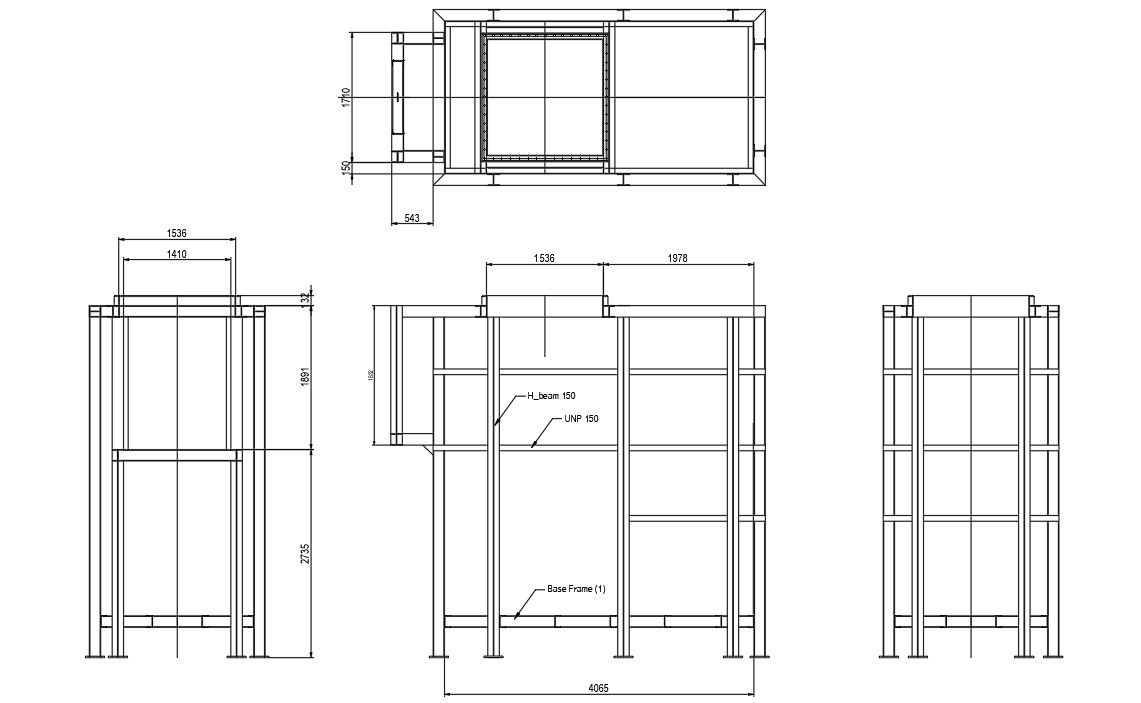
This architectural drawing is The main frame of the first chamber in detail AutoCAD 2D drawing, CAD file, dwg file. For more details and information download the drawing file. Thank you for visiting our website cadbull.com.
Uploaded by:
viddhi
chajjed

