Dynamic Blender Section Design in AutoCAD 2D DWG File
Description
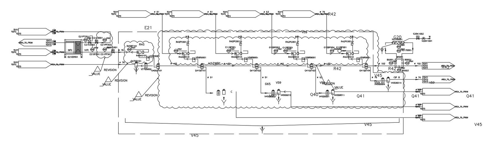
This architectural drawing is a Dynamic blender section design in AutoCAD 2D drawing, CAD file, and dwg file. Dynamic objects can collide with one another or with other objects, but they do not spin as a result of the collision. A stiff body ball would start rotating when it hit a ramp while a dynamic ball would slide down it. The Dynamic type can save the additional calculation if you do not need the rotational reaction. For more details and information download the drawing file. Thank you for visiting our website cadbull.com.
File Type:
3d max
File Size:
1.5 MB
Category::
Mechanical and Machinery
Sub Category::
Factory Machinery
type:
Gold
Uploaded by:
viddhi
chajjed
