Single line electrical diagram AC bibin design in AutoCAD 2D drawing, CAD file, dwg file
Description
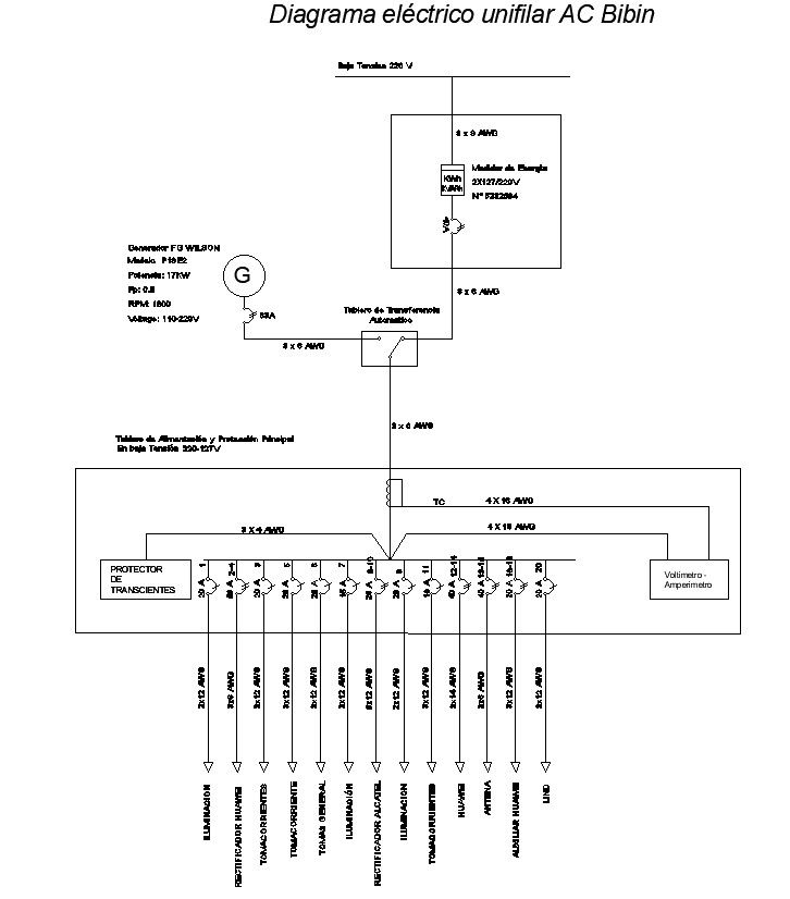
This architectural drawing is Single line electrical diagram AC bibin design in AutoCAD 2D drawing, CAD file, dwg file. A single-page document known as a single-line diagram, sometimes known as a one-line diagram, often depicts the electrical distribution infrastructure of a facility. To indicate all three phases, a single bus (or cable) line will be displayed. For more details and information download the drawing file. Thank you for visiting our website cadbull.com.
File Type:
DWG
File Size:
134 KB
Category::
Electrical
Sub Category::
Electrical Automation Systems
type:
Gold
Uploaded by:
viddhi
chajjed

