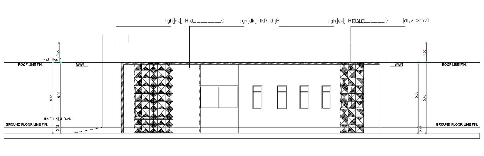
2D design of south elevation of the toilet-bathroom area wall in AutoCAD drawing, CAD file, dwg file
Description
This architectural drawing is the 2D design of the south elevation of the toilet-bathroom area wall in AutoCAD drawing, CAD file, and dwg file. For more details and information download the drawing file. Thank you for visiting our website cadbull.com.
Uploaded by:
viddhi
chajjed

