Electric layout plan of terrace floor in detail AutoCAD 2D drawing, CAD file, dwg file
Description
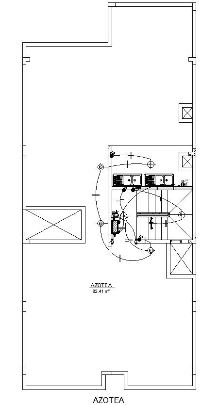
This architectural drawing is an Electric layout plan of the terrace floor in detail AutoCAD 2D drawing, CAD file, and dwg file. Sometimes the electrical plan is referred to as a wiring diagram or electrical sketch. It is a kind of technical drawing that provides visual representation and explains circuits and electrical systems. For more details and information download the drawing file. Thank you for visiting our website cadbull.com.
Uploaded by:
viddhi
chajjed

