AutoCAD 2D design of foundation plan in detail, CAD file, dwg file
Description
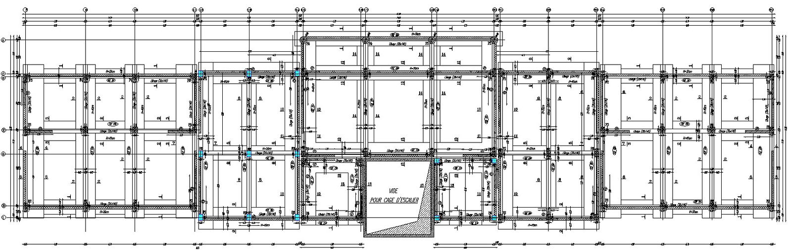
This architectural drawing is an AutoCAD 2D design of the foundation plan in detail, CAD file, and dwg file. A foundation plan is a schematic of the complete structure's baseline. It displays a view of the structure that appears to have been planned on a horizontal plane. It is used to demonstrate the design and how the constructors intend to build it. For more details and information download the drawing file. Thank you for visiting our website cadbull.com.
Uploaded by:
viddhi
chajjed

