2D design of west side elevation of sports club with dimensions in AutoCAD drawing, CAD file, dwg file
Description
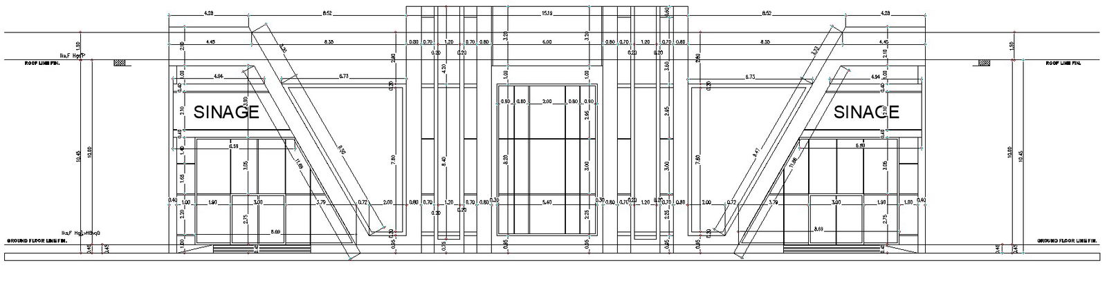
This architectural drawing is the 2D design of the west side elevation of the sports club with dimensions in AutoCAD drawing, CAD file, and dwg file. For more details and information download the drawing file. Thank you for visiting our website cadbull.com.
Uploaded by:
viddhi
chajjed

