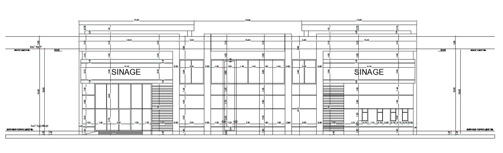
2D design of south elevation of sports club with dimensions in detail AutoCAD drawing, CAD file, dwg file
Description
This architectural drawing is the 2D design of the south elevation of the sports club with dimensions in detail AutoCAD drawing, CAD file, dwg file. For more details and information download the drawing file. Thank you for visiting our website cadbull.com.
Uploaded by:
viddhi
chajjed

